
Tamil Women's House
Using architecture training to expand healthcare access in rural India
12-hour days in the paddies; a need for rest and care
Tamil Women’s House was a project initiated by myself and friend Lauren Farquhar to design and build a small retreat and health facility for women in rural Tamil Nadu, India.
Having made a few contacts in India via the architecture faculty at the University of Cincinnati, Lauren and I arrived in India in 2005 believing we'd do relief work following the 2004 tsunami that ravaged the coast of India. After learning that tsunami reconstruction was mired in bureaucratic corruption, we made contact with a local non-profit, the Palmyra Centre for Ecological Land Use & Rural Development, that proposed collaborating on a small women's retreat and health clinic. The women in this part of India regularly spend 12+ hours a day — 6 or 7 days a week — hunched over in rice paddies to earn income for their families.
We raised over $14,000 for the project, including a grant from Architecture for Humanity. Land was donated by Palmyra. Lauren and I lived in India for four months, during which we jointly directed all design and construction coordination. Below are a progress photos of the project, which was completed shortly after our departure from India.
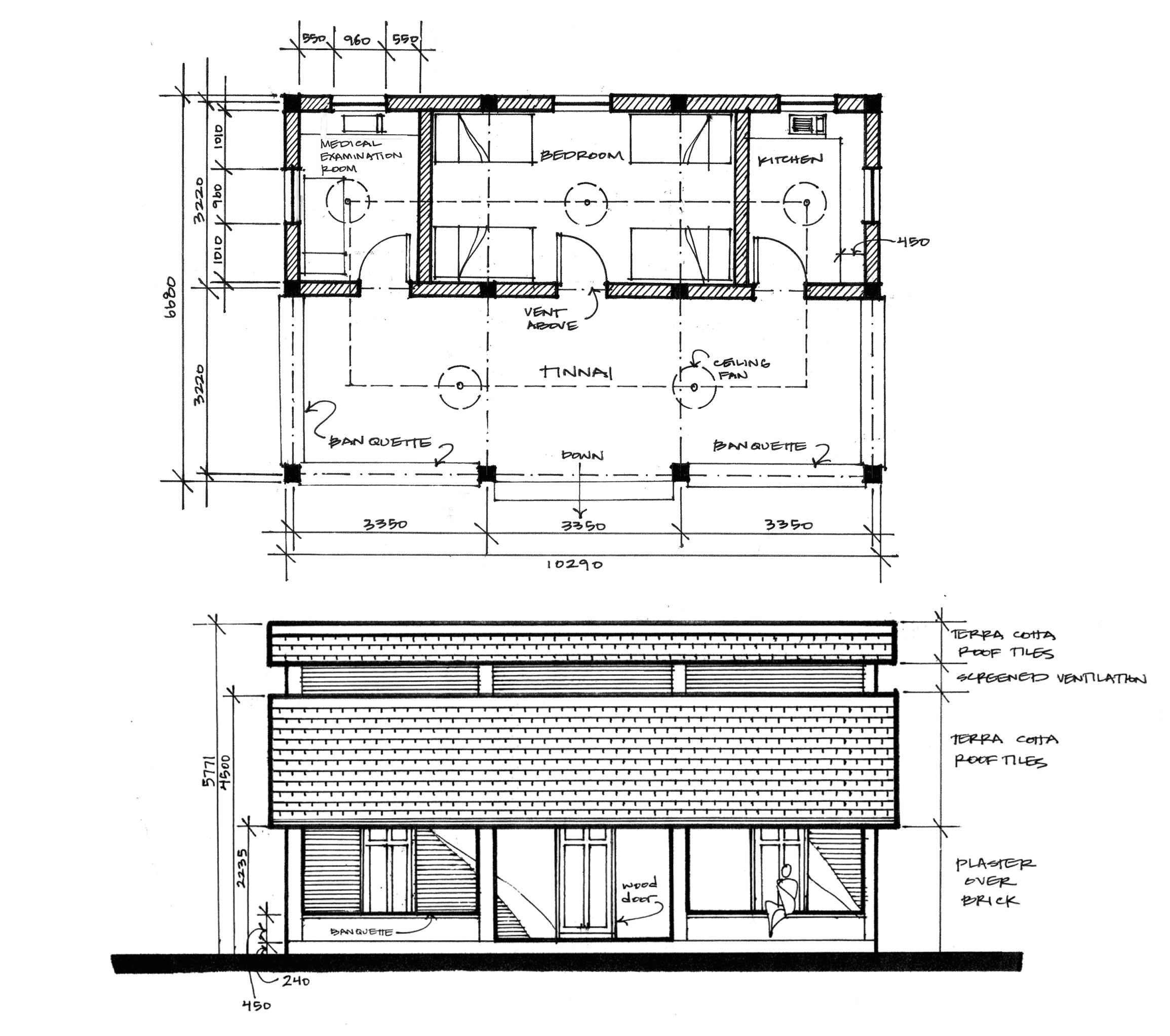
Plan and elevation capturing the various areas for relaxation and medical care.
Section capturing vernacular strategies for passive cooling and cross-ventilation in a hot, warm climate.





































